Objectives and description
Objective
The aim of this project is to study the application of advanced control algorithms on hard-to-control dynamic systems. The chosen systems are small scale helicopters which are examples of nonlinear, unstable, multivariable and coupled systems.
During the development of the experimental platform several questions arose. They are now part of the subobjectives of this project, namely:
- Identification of unstable systems
- Identification of closed loop systems
- Control structure for a helicopter autopilot
- Adaptation of controller algorithms to changing flying modes
- Fast computer vision localization of a moving object
- Fast computer vision orientation determination of a moving target
Participants
The research team associated to this project is leaded by:
- Bernardo Morcego
- Ramon Pérez
- Josep Cugueró
The students who colaborated are: Daniele Laccetti, Gabriel Portell, Alex Vargas, Sebastià Roca, David Heredia, Rubèn Acedo, Albert Jordà, Gerard Graugés, Tomeu Rubí.
Description of the system

The experimental platform consists on a small helicopter flying indoors in a 2m cubic space. The helicopter carries no instrumentation at all, therefore its position and attitude measurements are obtained with external sensors and the control commands are sent through the original remote control transmitter commanded by the control computer.
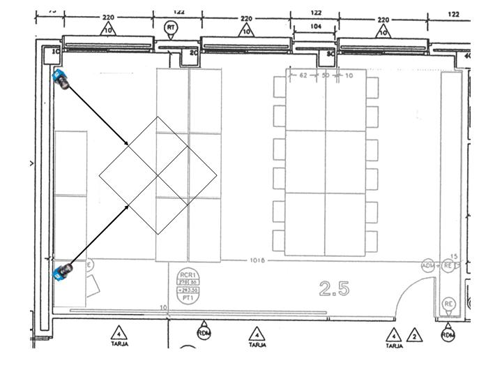
The control space is an imaginary cube of 2m side in the Advanced Control Laboratory of the Control Engineering dept. at UPC (campus Terrassa). This space, shown in the figure on the right, is watched by two cameras situated at 2.5m from its external surface and situated at 90º angle with each other.
Three different computer applications are involved in the development of this platform, they are: the sensor, the controller and the actuator.
Hardware Components
The μUAVs control system is composed of:
- one Intel Dual core 2 laptop
- two The Imaging Source DMK 31AF03 cameras (1024 x 768 pixels, monochromatic, Y800, 30fps)
- input/output cards Advantech PCI - 1711 and Advantech PCI - 1720U
- one Belkin PCI Express FireWire 800 y USB 2.0 card
- several toy helicopters with their radio controllers. Currently using Walkera 5G4 or 5#10 coaxial models.
-
Silverlit PicooZ
-
Alany microMosquito
-
Walkera 5#10
Software Components
The sensor
This is a complex computer vision application, capable of detecting a moving irregular object and calculating its position (XYZ coordinates) and attitude (pitch, yaw, and roll angles) in the control space. Every 1/30th of a second the sensor, a stand alone WinXP application, leaves its measures in UDP port 20248.
The controller
This Matlab script uses timers and pnet sockets to retrieve the measurements from the sensor. After that, control actions are calculated and issued through the actuator.
The actuator
This is both a Matlab script and a harwdare arrangement. RC transmitter joystick positions can be read and set from Matlab. This application allows the user to simply read in the joystick positions from Matlab, or send the helicopter those readings plus any calculated value or send controller action commands directly to the helicopter. The RC transmitter also has a safety switch which disables any external connection and only attends pilot commands.
Go back


